+359 896 162 777 office@novvek.bg

гр. Варна, ул. София 3 Работно време: 9:00 - 18:00

Продава 2-стаен КОД: 257

Двустаен апартамент в кв. Левски

€ 138,500 / € 1,923.61 на м2 /

2-стаен Тип

Етаж 7 от 8 етажа

1 Спални

0 м2 Чиста площ

72 м2 Обща площ

€ 1,923.61 Цена м2

€ 138,500 Цена

  • Код: 257
  • Статус: Свободен
  • Град: Варна
  • Район: Левски
  • Строителство: Тухла
  • Година на строителство: 2027
  • Площ: 72 м2
  • Обзавеждане: Обзаведен

В СТРОЕЖ !

В САМИЯ КВАРТАЛ ЛЕВСКИ, НЕ СОТИРА ИЛИ ИЗГРЕВ !

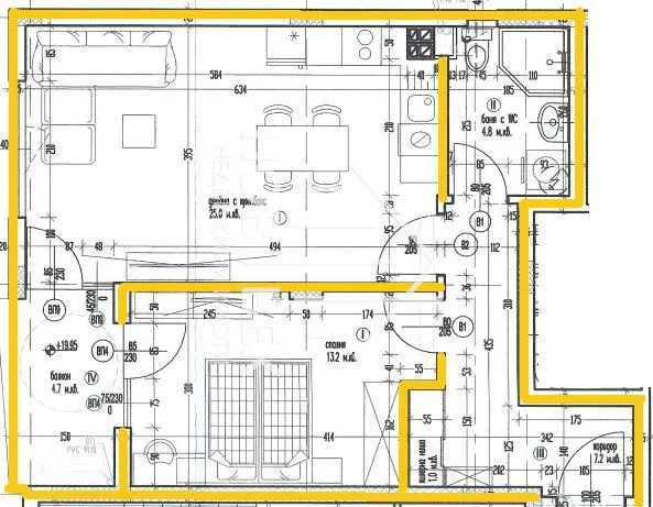
Нов век недвижими имоти предлага на вашето внимание комфортен двустаен апартамент в кв. Левски.

Имота ще бъде разположен на седми етаж от общо 7 в сграда, която ще се отличава с модерна визия, качествени материали и висока енергийна ефективност.

На обща площ от 71,85кв.м. са разположени дневен тракт с кухненска част, спалня, баня с тоалетна, коридор и тераса.

Налични са за продажба открити и подземни паркоместа.

В сградата се предлагат също и апартаменти с две и три спални.

За повече информация и огледи :

Богдан Димитров : 0883/458889

Двустаен апартамент в кв. Левски
Продава

Двустаен апартамент в кв. Левски

2-стаен КОД: 257

€ 138,500 / € 1,923.61 на м2 /

Варна Левски

Площ:
72 м2

Тип:
2-стаен

Етаж:
7

* Натискайки бутона “Изпращане” Вие се съгласявате с нашите Общи условия и Политиката за защита на личните данни.

Още имоти

Отдава под наем

4-стаен

КОД: 527

€ 2,200 / € 11.22 на м2 /

Варна Идеален център

Площ:
196 м2

Тип:
4-стаен

Етаж:
3 от 5

Отдава под наем

3-стаен

КОД: 526

€ 650 / € 9.29 на м2 /

Варна Гръцка махала

Площ:
70 м2

Тип:
3-стаен

Отдава под наем

2-стаен

КОД: 523

€ 665 / € 8.52 на м2 /

Варна Гръцка махала

Площ:
78 м2

Тип:
2-стаен

Отдава под наем

Склад

КОД: 522

€ 828 / € 6.14 на м2 /

Варна Западна пром. зона

Площ:
135 м2

Тип:
Склад

Продава
КОД: 521

€ 435,000 / € 1,204.99 на м2 /

Варна, област с.Казашко

Площ:
361 м2

Отдава под наем

2-стаен

КОД: 512

€ 500 / € 6.17 на м2 /

Варна Окръжна болница

Площ:
81 м2

Тип:
2-стаен

Отдава под наем

3-стаен

КОД: 511

€ 650 / € 9.29 на м2 /

Варна Възраждане

Площ:
70 м2

Тип:
3-стаен

Отдава под наем

1-стаен

КОД: 509

€ 409 / € 13.63 на м2 /

Варна Център

Площ:
30 м2

Тип:
1-стаен

Отдава под наем

2-стаен

КОД: 508

€ 601 / € 9.24 на м2 /

Варна Левски

Площ:
65 м2

Тип:
2-стаен

Етаж:
2 от 6

Отдава под наем

3-стаен

КОД: 500

€ 550 / € 9.17 на м2 /

Варна Окръжна болница

Площ:
60 м2

Тип:
3-стаен

Отдава под наем

3-стаен

КОД: 499

€ 562 / € 8.65 на м2 /

Варна Център

Площ:
65 м2

Тип:
3-стаен

Научи за новите имоти преди да бъдат публикувани!

* Натискайки бутона “Абонирай ме” Вие се съгласявате с нашите Общи условия и Политиката за защита на личните данни, като ще получавате имейлки от Нов Дом на посочения имейл адрес