+359 896 162 777 office@novvek.bg

гр. Варна, ул. София 3 Работно време: 9:00 - 18:00

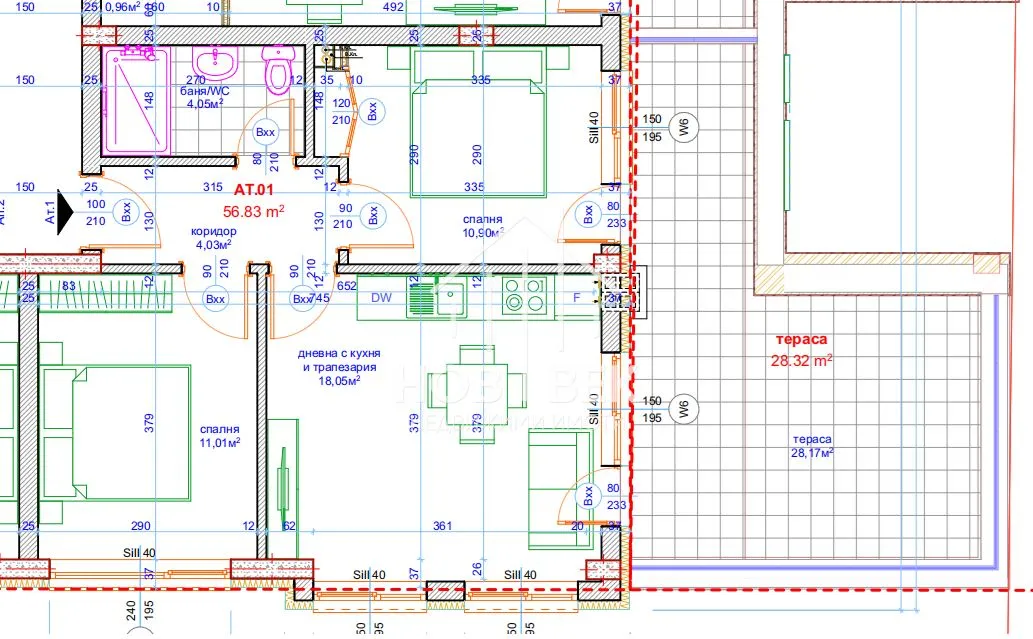
Продава 3-стаен КОД: 389

Ателие

€ 142,000 / € 1,400.67 на м2 /

3-стаен Тип

Етаж 2 от 8 етажа

2 Спални

83.35 м2 Чиста площ

101.38 м2 Обща площ

€ 1,400.67 Цена м2

€ 142,000 Цена

  • Код: 389
  • Статус: Свободен
  • Изложение: Югоизток, Юг
  • Град: Варна
  • Район: Погребите
  • Строителство: Тухла
  • Година на строителство: 2027
  • Площ: 101.38 м2

НОВО КАЧЕСТВЕНО СТРОИТЕЛСТВО! СГРАДА РАЗПОЛОЖЕНА В РАЙОН ПОГРЕБИ! ВЪЗМОЖНОСТ ЗА ИЗБОР НА РАЗЛИЧНИ ОБЕКТИ!

Агенция за недвижими имоти НОВ ВЕК ви представя нов проект, разположен в район Погреби, на 10 мин. пеша от центъра на гр. Варна и Катедралата. На 5 мин. пеша от училище, детска градина, медицински център, магазини и аптеки. Възможност за избор между различни етажи и изложения, паркоместа и подземен паркинг! Морска панорама, 24 часово видео наблюдение, контролиран достъп. Сградата е разположена в близост до центъра на Варна, с удобни транспортни връзки в целия град.

Имотът е с чиста жилищна площ от 83,85 кв.м и се състои от:

  • коридор/антре – 4,03 кв.м.;
  • дневна с кухня и трапезария – 18,05 кв.м.;
  • две спални по 11 кв.м. всяка;
  • една тераса – 28,32 кв.м.;
  • баня с тоалетна – 4,05 кв.м.

ПРЕДИМСТВА НА СГРАДАТА:

  • Функционални разпределения за максимален комфорт и уют на обитаване;
  • Светли и просторни стаи с правилни форми;
  • Панорамна гледка към Варненското езеро;
  • Качествено изпълнение до степен по завършеност по БДС, подготвено за довършителни дейности;
  • Възможност за обединение на апартаменти при нужда от по-голяма площ.
Ателие
Продава

Ателие

3-стаен КОД: 389

€ 142,000 / € 1,400.67 на м2 /

Варна Погребите

Площ:
101.38 м2

Тип:
3-стаен

Етаж:
2

* Натискайки бутона “Изпращане” Вие се съгласявате с нашите Общи условия и Политиката за защита на личните данни.

Още имоти

Отдава под наем

4-стаен

КОД: 527

€ 2,200 / € 11.22 на м2 /

Варна Идеален център

Площ:
196 м2

Тип:
4-стаен

Етаж:
3 от 5

Отдава под наем

3-стаен

КОД: 526

€ 650 / € 9.29 на м2 /

Варна Гръцка махала

Площ:
70 м2

Тип:
3-стаен

Отдава под наем

2-стаен

КОД: 523

€ 665 / € 8.52 на м2 /

Варна Гръцка махала

Площ:
78 м2

Тип:
2-стаен

Отдава под наем

Склад

КОД: 522

€ 828 / € 6.14 на м2 /

Варна Западна пром. зона

Площ:
135 м2

Тип:
Склад

Продава
КОД: 521

€ 435,000 / € 1,204.99 на м2 /

Варна, област с.Казашко

Площ:
361 м2

Отдава под наем

2-стаен

КОД: 512

€ 500 / € 6.17 на м2 /

Варна Окръжна болница

Площ:
81 м2

Тип:
2-стаен

Отдава под наем

3-стаен

КОД: 511

€ 650 / € 9.29 на м2 /

Варна Възраждане

Площ:
70 м2

Тип:
3-стаен

Отдава под наем

1-стаен

КОД: 509

€ 409 / € 13.63 на м2 /

Варна Център

Площ:
30 м2

Тип:
1-стаен

Отдава под наем

2-стаен

КОД: 508

€ 601 / € 9.24 на м2 /

Варна Левски

Площ:
65 м2

Тип:
2-стаен

Етаж:
2 от 6

Отдава под наем

3-стаен

КОД: 500

€ 550 / € 9.17 на м2 /

Варна Окръжна болница

Площ:
60 м2

Тип:
3-стаен

Отдава под наем

3-стаен

КОД: 499

€ 562 / € 8.65 на м2 /

Варна Център

Площ:
65 м2

Тип:
3-стаен

Научи за новите имоти преди да бъдат публикувани!

* Натискайки бутона “Абонирай ме” Вие се съгласявате с нашите Общи условия и Политиката за защита на личните данни, като ще получавате имейлки от Нов Дом на посочения имейл адрес