+359 896 162 777 office@novvek.bg

гр. Варна, ул. София 3 Работно време: 9:00 - 18:00

Продава Къща КОД: 181

Модерна двуетажна къща с три спални в м-т Траката, Варна

€ 289,000 / € 2,064.29 на м2 /

Къща Тип

Етаж 0 от 0 етажа

0 Спални

0 м2 Чиста площ

140 м2 Обща площ

€ 2,064.29 Цена м2

€ 289,000 Цена

  • Код: 181
  • Статус: Свободен
  • Град: Варна
  • Район: Траката
  • Строителство: Тухла
  • Година на строителство: 2025
  • Парцел: 140 м2

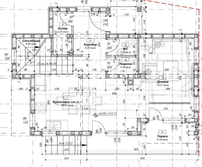
НОВ ВЕК недвижими имоти представя на вашето внимание стилна и функционална къща с РЗП 140 кв.м, разположена в престижната и тиха местност Траката – една от най-желаните зони край Варна!

Първи етаж:

Просторна и светла всекидневна – перфектна за семейни моменти и гости,

отделна кухня с трапезария, килер, перално помещение, баня с тоалетна и практичен коридор с вътрешно стълбище.

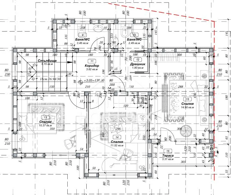
Втори етаж:

Три комфортни спални, две стилни бани с тоалетни, дрешник и слънчева тераса.

🏡 Двор – 300 кв.м – достатъчно място за градина и зона за отдих.

🚗 Две паркоместа – удобство, което не е за подценяване.

Къщата е проектирана с мисъл за комфорта и нуждите на модерното семейство. Отлична локация с бърз достъп до центъра на Варна, в близост до морето, тишина, зеленина и престижна среда.

✨ Вашият нов дом ви очаква – стилен, функционален и готов да сбъдне мечтите ви!

📞 За повече информация и огледи:

Валентин Динев – 0882 853 331

Модерна двуетажна къща с три спални в  м-т Траката, Варна
Продава

Модерна двуетажна къща с три спални в м-т Траката, Варна

Къща КОД: 181

€ 289,000 / € 2,064.29 на м2 /

Варна Траката

Площ:
140 м2

Тип:
Къща

Етаж:
0

* Натискайки бутона “Изпращане” Вие се съгласявате с нашите Общи условия и Политиката за защита на личните данни.

Още имоти

Отдава под наем

4-стаен

КОД: 527

€ 2,200 / € 11.22 на м2 /

Варна Идеален център

Площ:
196 м2

Тип:
4-стаен

Етаж:
3 от 5

Отдава под наем

3-стаен

КОД: 526

€ 650 / € 9.29 на м2 /

Варна Гръцка махала

Площ:
70 м2

Тип:
3-стаен

Отдава под наем

2-стаен

КОД: 523

€ 665 / € 8.52 на м2 /

Варна Гръцка махала

Площ:
78 м2

Тип:
2-стаен

Отдава под наем

Склад

КОД: 522

€ 828 / € 6.14 на м2 /

Варна Западна пром. зона

Площ:
135 м2

Тип:
Склад

Продава
КОД: 521

€ 435,000 / € 1,204.99 на м2 /

Варна, област с.Казашко

Площ:
361 м2

Отдава под наем

2-стаен

КОД: 512

€ 500 / € 6.17 на м2 /

Варна Окръжна болница

Площ:
81 м2

Тип:
2-стаен

Отдава под наем

3-стаен

КОД: 511

€ 650 / € 9.29 на м2 /

Варна Възраждане

Площ:
70 м2

Тип:
3-стаен

Отдава под наем

1-стаен

КОД: 509

€ 409 / € 13.63 на м2 /

Варна Център

Площ:
30 м2

Тип:
1-стаен

Отдава под наем

2-стаен

КОД: 508

€ 601 / € 9.24 на м2 /

Варна Левски

Площ:
65 м2

Тип:
2-стаен

Етаж:
2 от 6

Отдава под наем

3-стаен

КОД: 500

€ 550 / € 9.17 на м2 /

Варна Окръжна болница

Площ:
60 м2

Тип:
3-стаен

Отдава под наем

3-стаен

КОД: 499

€ 562 / € 8.65 на м2 /

Варна Център

Площ:
65 м2

Тип:
3-стаен

Научи за новите имоти преди да бъдат публикувани!

* Натискайки бутона “Абонирай ме” Вие се съгласявате с нашите Общи условия и Политиката за защита на личните данни, като ще получавате имейлки от Нов Дом на посочения имейл адрес